Баня Хилл-хаус «Эксклюзив»
757 990 ₽
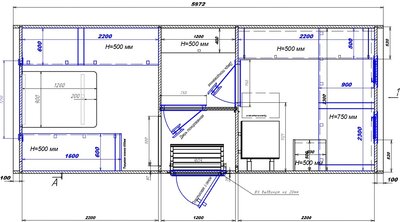
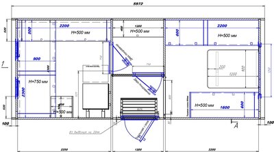
Баня Хилл-хаус имеет три помещения. В данной модели Вы можете организовать полноценное помывочное отделение. За счет формы баня обеспечит быстрый прогрев помещений даже зимой. Баня устанавливается бригадой сборщиков за один день.
-
Рассчитайте комплектацию и стоимость
Вы можете сделать точный расчет стоимости бани и сделать заказ самостоятельно. Нажмите на каждый пункт для выбора опций.
Выберите условия поставки
Выберите материал
Выберите планировку
Выберите входную дверь
Выберите тип печи
-
Grill'D Bochky Short
В базовой комплектации. Grill’D Bochky Short с внутренней топкой. Загрузка - 40 кг камней. Сталь повышенной прочности
-
Печь не выбрана
Дополнительно к печи
-
Баки и опции
-
Сетка для камней L500 с камнями. В базовой комплектации бани.
-
-
Выберите межкомнатную дверь
-
-
Выберите дополнительные опции
Теплый пол
Для обогрева используется инфракрасная система с защитой от перегрева, обеспечивающая быстрый и равномерный нагрев. В качестве напольного покрытия применяется кварц-виниловая плитка (SPC) с текстурой натурального дерева, отличающаяся повышенной износостойкостью и эстетичным внешним видом. Для максимальной энергоэффективности монтаж выполняется на специальную теплоизолирующую подложку.Спальное место
Описание: полка под окном (300 мм по всей ширине бани), 2 удобных ящика под полкой с дверцами на защелках, 2 просторных рундука по бокам бани с откидными крышками, раскладное спальное место 2200×1750 мм (убирается под полку). -
-
Цвета кровли
- +
- +
- +
-
Светодиодная подсветка полков
-
Индивидуальные изменения
-
Reset options
*Выберите комплектацию
-
Выберите цвет внешней обработки и количество слоев
Количество слоев внешней обработки
Цвет внешней обработки
Цвет торцов и наличников
Описание
Каркас
- Еловый или кедровый профиль толщиной 42х92 мм, влажностью 10%
- Основание под баню
- Внешняя обработка антисептиком в один слой (при поставке изделия в готовом виде или со сборкой на участке)
Кровля
- Крыша из гибкой черепицы Döcke PIE или Технониколь. Цвет коричневый

Печной узел
- Дровяная печь Grill’D Bochky Short
- Пожаробезопасное многослойное основание-сэндвич под печь из нержавеющей стали, минерита и базальтового картона
- Защита от нагрева из минерита
- Камни для печи (в подарок)

Дымоход
- Дымоход в сборе
- Проходной узел под дымоход из нержавеющей стали, термоизоляции, резинового уплотнителя с хомутом

Двери
- Входная дверь ПВХ с панорамным стеклопакетом 1800х700мм
- Стеклянная тонированная дверь в парилку 1640х605мм
- Стеклянная тонированная дверь в моечное отделение 1640х605мм
Парное отделение
- Полки из липы или осины согласно схемы расположения
- Трапик на пол из ели
- Светильник банный IP54
- Два окна 300х400 мм
Комната отдыха
- Полки из липы или осины согласно схемы расположения
- Трапик на пол из ели
- Стол
- Окно ПВХ 1250х780 мм со стеклопакетом и москитной сеткой
- Светильник банный IP54
- Розетка
- Выключатель
Моечное отделение
- Полки из липы или осины согласно схемы расположения
- Трапик на пол из ели
- Проливной пол с возможностью замены
- Светильник банный IP54
Каркас
- Срощенный еловый профиль 40х88 мм, влажностью 10%
- Основание под баню
- Внешняя обработка антисептиком в один слой (при поставке изделия в готовом виде или со сборкой на участке)
Кровля
- Крыша из гибкой черепицы Döcke PIE или Технониколь. Цвет коричневый

Печной узел
- Дровяная печь Grill’D Aurora Mini short black
- Пожаробезопасное многослойное основание-сэндвич под печь из нержавеющей стали, минерита и базальтового картона
- Защита от нагрева из минерита
- Камни для печи (в подарок)

Дымоход
- Дымоход в сборе
- Проходной узел под дымоход из нержавеющей стали, термоизоляции, резинового уплотнителя с хомутом

Двери
- Входная дверь деревянная без окна
- Деревянная дверь в парилку
- Деревянная дверь в моечное отделение
Парное отделение
- Полки из ели согласно схемы расположения
- Трапик на пол из ели
- Светильник банный IP54
- Два окна 300х400 мм
Комната отдыха
- Полки из ели согласно схемы расположения
- Трапик на пол из ели
- Стол
- Окно ПВХ 1250х780 мм со стеклопакетом и москитной сеткой
- Светильник банный IP54
- Розетка
- Выключатель
Моечное отделение
- Полки из ели согласно схемы расположения
- Трапик на пол из ели
- Душевой поддон
- Светильник банный IP54
Детали
| Количество помещений | 3 |
|---|---|
| Общая длина (наружный размер) | 5972 мм |
| Высота | 2800 мм |
| Ширина | 2384 мм |
| Вес | 2671 кг |












